13325 Callaway Drive, Madison, AL, 35756
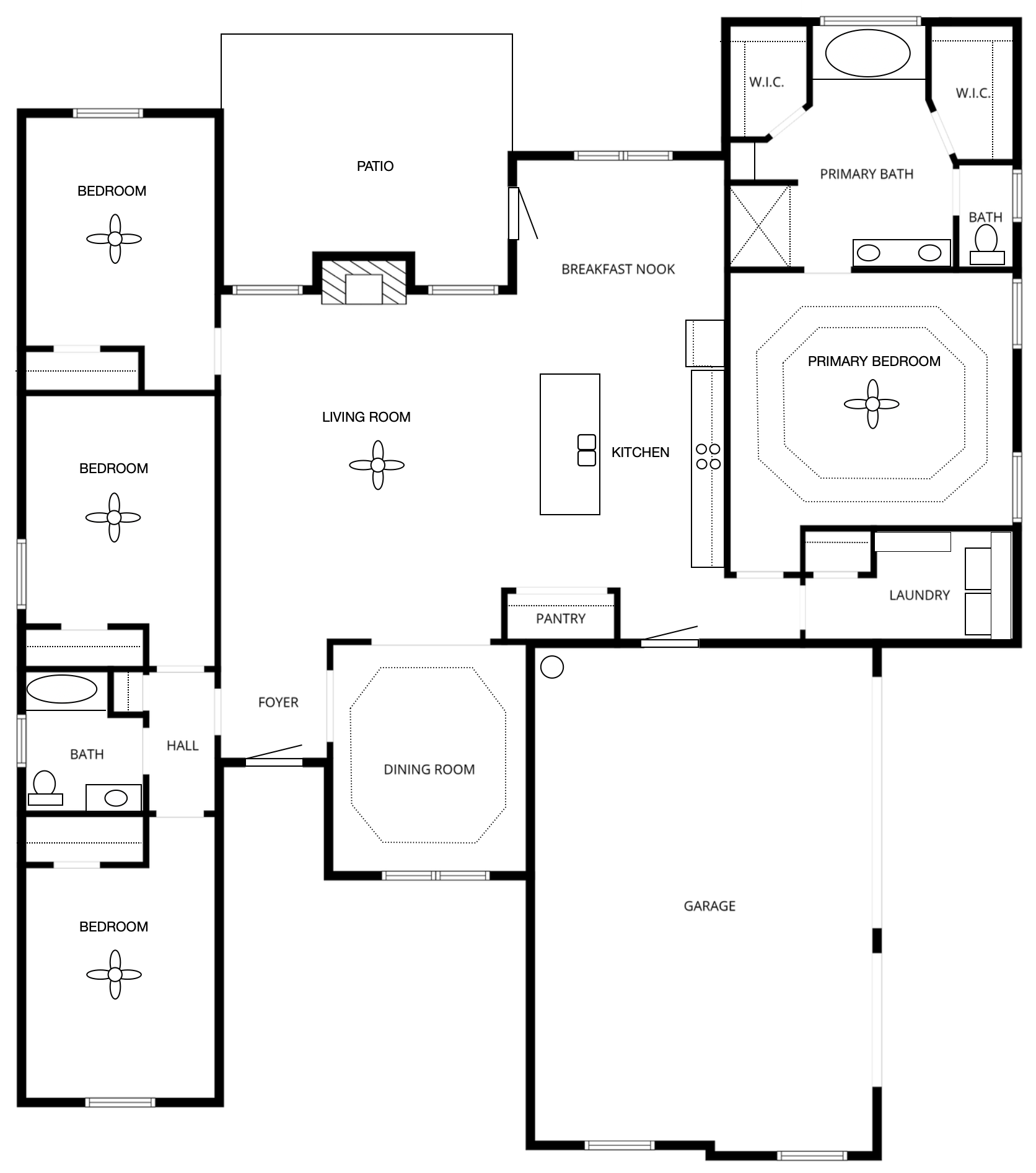
This full brick home in The Arbors features decorative trim above the windows and doors and crown molding with charming corner blocks, adding character and detail. Luxury vinyl plank flooring extends through the main living areas, creating a warm and cohesive look.
The kitchen offers granite countertops, a gas range, a large pantry, and a spacious counter-height island that is ideal for meal preparation and casual dining. Recessed lighting brightens the space and enhances the open feel.
The breakfast room is generously sized and opens directly to the large, partially covered patio, making indoor-to-outdoor living effortless.
The separate dining room includes a tray ceiling, wainscoting, and an elegant arched window, creating a welcoming space for gatherings and special occasions.
The living room provides a comfortable place to relax with a gas fireplace and ceiling fan, and the floor plan flows well for everyday living and entertaining.
The isolated master bedroom offers privacy and features a double tray ceiling, crown molding, a ceiling fan, and luxury vinyl plank flooring. The master bath includes tile flooring, a double vanity, a whirlpool tub, separate tile shower, water closet, and two walk-in closets.
There are three additional bedrooms, each with a ceiling fan.
A Murphy bed contributes to the multi-purpose fourth bedroom and will remain with an acceptable offer.
The laundry room is thoughtfully designed with automatic lighting, tile flooring, built-in storage to keep essentials tucked away, and a convenient broom closet.
The three-car side-entry garage provides ample parking and storage.
Outside, the partially covered patio allows for outdoor dining and relaxation. The backyard includes a raised garden, a mulched playground area, and a privacy fence, making it ideal for recreation and gardening. The property is attractively landscaped, adding to its overall curb appeal.

